本公司三相树脂绝缘干式变压器产品是在德国 AEG 公司优秀的企业文化、管理模式、开发技术指导下采用先进的仪器装备设计、制造,历经严格的可靠性考验。SCB系列 10kV、20kV和 35kV级三相树脂绝缘干式电力变压器通过国家变压器质量监督检验中心的全部例行、型式和特殊试验以及气候 C2、环境 E2 和燃烧 F1 等级试验。SCB-2500/12.47 电力变压器通过 KEMA 试验室的短路试验.SCB-1600/11和 SCLB-2000/20 电力变压器通过 KEMA 型式试验,SCLB-2500/13.8 通过荷兰 KEMA 型式试验,带柜和连接母排的整套于式变压器通过同济大学十木工程防灾国家重点实验室的抗震试验:变压器线圈通过上海船舶设备研究所检测中心的 -40°冷冻储存试验和三防试验。产品出口美国及世界各地,同时也在国内销售。
容量:160-16000kVA
电压:35kV 及以下
调压范围:无励磁调压 士5%、土2x2.5%或其它有载调压 士4x2.5%、士3x2.5% 或其它
相数:3 相
频率:50Hz或 60Hz
联 结 组:Dyn11、Yyn0、Yd11、YNd11 或其它
绝缘等级:F级或H级
绝缘水平:1kV级 AC3、6kV级 LI60AC20、10kV级 LI75AC35、20kV级 LI125AC50、35kV级L170AC70
冷却方式:自冷(AN)、自冷(AN)/风冷(AF)或其它
防护等级:IP00、IP20、IP23、IP24、IP30 或其它
正常使用条件:海拔不超过 1000m 环境气温不高于 40°C最低气温户内不低于一5°C、户外不低于-30°C
| 相数 | 3 相 |
| 频率 | 50Hz |
| 使用条件 | 正常使用条件 |
| 高压 | 10(11、10.5、6.3、6.0)kV |
| 高压分接范围 | 士5% 或 士2x2.5% |
| 低压 | 0.4kV |
| 联结组标号 | Dyn11 或Yyn0 |
| 调压方式 | 无励磁调压 |
| 绝缘等级 | F或H |
| 高、低压线圈真空环氧树脂浇注 |
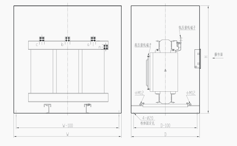
变压器柜防护等级执行 GB4208 标准。
户内式:变压器柜种类按防护等级分有IP20、IP30、IP21等。
户外式:变压器柜种类按防护等级分有IP23、IP24、IP34 等。
特点:可防止人体接近柜内危险部件和相应固体异物进入柜内,通风散热性能良好,变压器与柜体可分体运输及安装或整体运输及吊装。
材质:标准变压器柜采用钢板喷塑型,可抗 200小时的盐雾腐蚀;也可用不锈钢板或铝合金板制造。
附件:门板上装有控制接线箱;门板上还可装温度显示控制器,有载调压产品门板上还可装有载调压控制器。
本公司还可配套供应和安装柜内镀锡连接铜排;能经受地震引发的地面加速度ag:水平方向 0.6g,垂直方向 0.3g考验。
