SecoGear系列是一款紧凑型空气绝缘开关设备,在设计上有所创新,在安全性、可靠性、性能及可持续性方面位于行业前沿。根据 GB/T3906 和IEC 62271-200交流金属封闭开关设备标准,在国家权威试验机构获得认证。SecoGearP/V开关设备能控制和保护电缆、变压器、电容和电机等工业常用设备。SecoGearP/V能在所有中压电力切换、控制和防护应用领域一展所长。
根据GB/T3906,IEC62271-200标准,SecoGearP/V系列通过了国家权威试验机构的型式试验。根据GB/T1984,IEC62271-100标准,SecoVac系列真空断路器同样通过了国家权威试验机构的型式试验。P/V系列产品中配备了该系列的断路器。采用最高质量标准的先进技术和制造工艺;我们的工程师集成了核心技术。结合断路器、机制设计、真空电弧控制技术、绝缘技术以及电场控制和分析技术,创造出了高可靠性的紧凑型系统。SecoGearP/V系列采用了目前最佳的中压技术。SecoGearP/V-12 额定电压为 3.6/7.2/12kV,额定电流从 630A 到5000A(4000A及以上时要求强制风冷), SecoGearP/V-24额定电流从630A到3150A(3150A时要求强制风冷)。
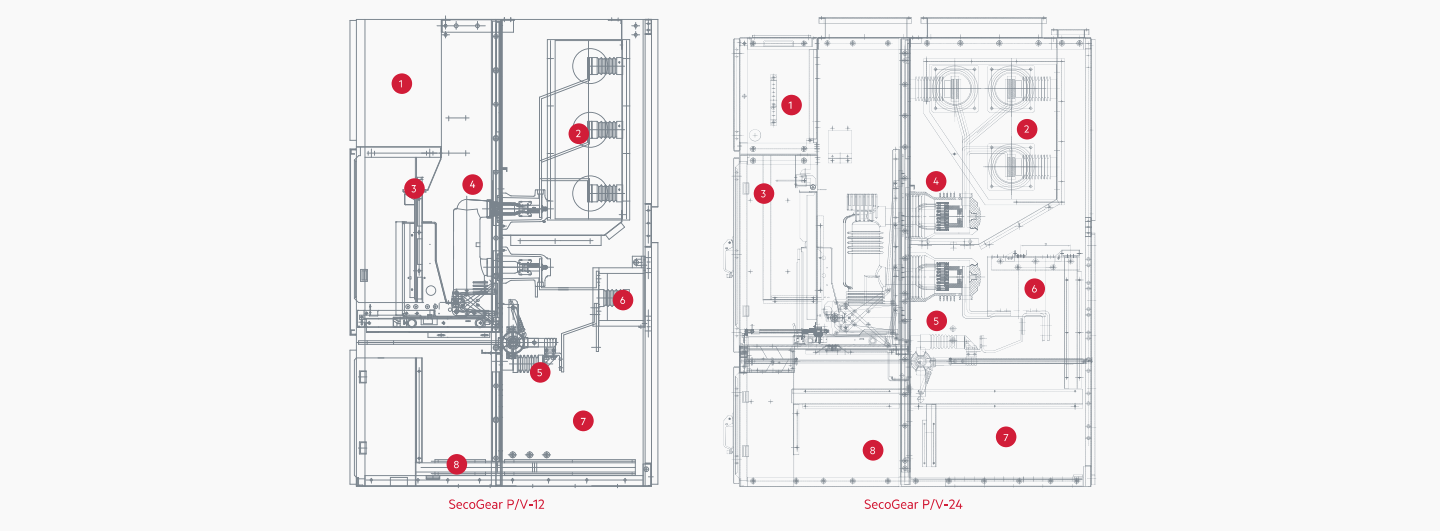
所有SecoGear 开关设备都配备了相关规格的 SecoVac VB2 Plus 真空断路器。
低压室由带接地系统的金属隔板组成,留有足够的空间放置控制和保护设备。每一开关都装有一条完全隔离的二次控制线通路;形成一条连续的、沿着整个开关设备的低压线通道。
母线室由带接地系统的金属隔板组成。母线整段均可作绝缘处理,SecoGearP/V-12通过等级高达5000A,50kA/4s 的型式试验。SecoGearP/V-24 通过3150A,31.5kA/4s的型式试验。
断路器室由已接地的金属隔板组成,室内带有单独的压力释放通道。该室提供了安全联锁机构,保证真空断路器操作的安全性和可靠性。在断路器室门关闭的情况下,可用面板上的按钮进行操作。断路器与电缆室门有机械联锁,因此有当断路器分闸并移至试验位置(同时接地开关合闸状态)时才能打开电缆室门。
当断路器位于试验位置时,活门会自动关闭,避免与静触头的接触。当断路器在工作位置时,活门自动打开
可以从开关柜的正面操作接地开关。接地开关与断路器手车互有机械联锁,只有当断路器在试验位置时,才能操作接地开关。同时,接地开关和电缆室有机械连锁保证安全。
电流互感器的一次元件被完全封闭在环氧树脂内,防止污秽物水汽的进入,防护性能卓越。该互感器可配置一个或多个独立绕组,满足测量、计量和保护的不同需要。
电缆室下部装有支撑电缆的支架。也提供了电缆夹以便固定电缆。此外,金属底板是可分离的。
位于电缆室的底部。通过了相应的接地回路动热稳定试验。
面板带有全部控制开关和指示灯,视图清晰,操作简便。
可以根据用户的要求安装各品牌的继电保护。
电路模拟图,清晰显示工作状态。
断路器位置指示灯能显示其所处的工作试验位置。
断路器分闸/合闸状态指示灯。
根据IEC61243-5 标准,开关柜都能可选配备的标准三相电压检测系统以检测电压。
断路器室门的可视窗口,便于目视检查断路器的位置:(1)断路器的状态(2)弹簧储能机构的状态
断路器摇进/摇出操作孔。
接地开关分闸/合闸,断路器分闸/合闸指令开关,可选 LED 灯,指示弹簧储能机构的“储能”状态。
| 额定电压 | kv | 3.6 | 12 | 24 |
| 额定工频耐受电压(1min) | kv | 25 | 42 | 65 |
| 额定雷电冲击耐受电压(1.2/504s) | kv | 40 | 75 | 65 |
| 额定频率 | HZ | 50 | 65 | |
| 额定电流(主母线) | A | 630/125011600/2000/2500/3150/4000*5000* | 6301250/1600/2000/2500/3150* | |
| 额定短时耐受电流(有效值4秒) | kA | 25/315/40/5025/315 | 25/315 | |
| 额定峰值耐受电流 | kA | 63/80/100(125*N125(135*)IPGX | IPGX | |
| IP 防护等级 | 外壳 | IPGX | IPGX | |
| 内部燃弧等级 | G0kAs(50kA/05) | 315kA/1s | ||
